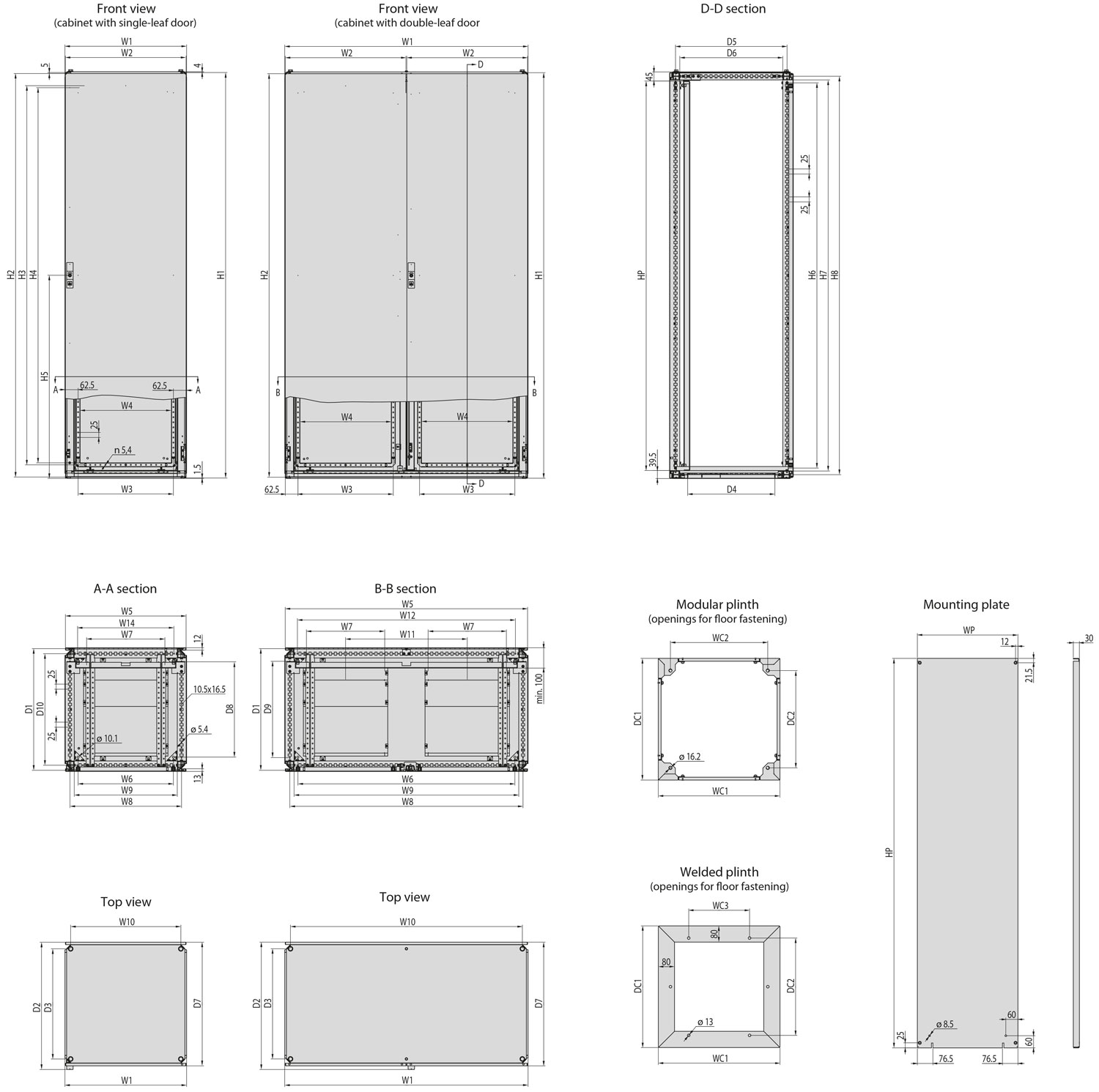
SZE3 system cabinets
Szafy systemowe SZE3
.
REFERENCE CHART - cabinets with a width of 800 mm
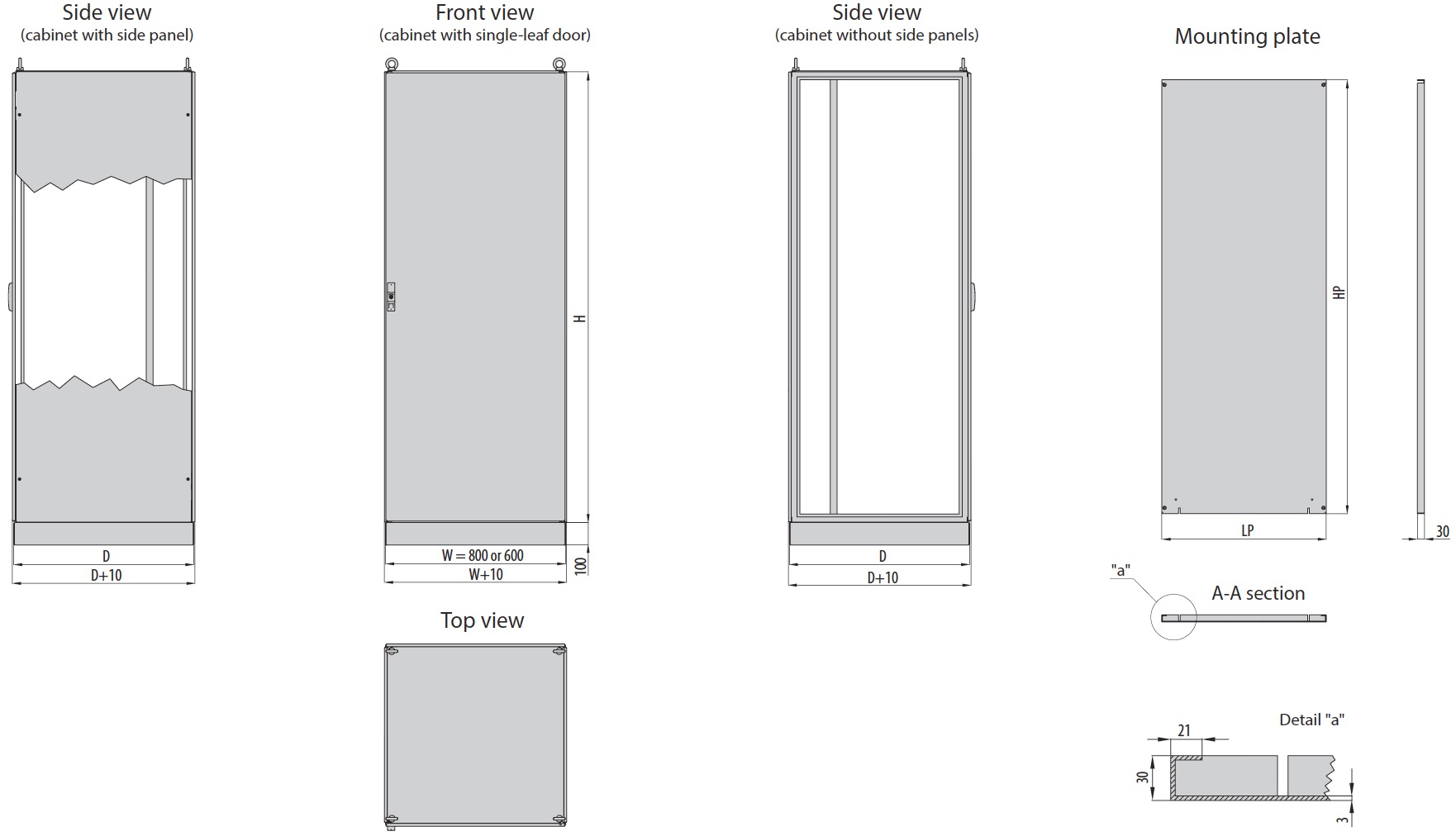
*) SZE3 cabinet - scope of delivery: cabinet’s frame, front door with a lock that incl. double-bit insert (no handle), rear panel, mounting plate for the full height of the cabinet, solid top panel,, set of sliding gland plates for cabinet’s bottom plate. Side panels, plinth, lifting eyes and other supplementary accessories should be ordered separately.
**) Detailed list of supplementary accessories.
**) Detailed list of supplementary accessories.
REFERENCE CHART - cabinets with a width of 1200 mm
*) SZE2 cabinet - scope of delivery: cabinet’s frame, front door with a lock that incl. double-bit insert (no handle), rear panel, mounting plate for the full height of the cabinet, solid top panel, set of sliding gland plates for cabinet’s bottom plate. Side panels, plinth, lifting eyes and other supplementary accessories should be ordered separately.**) Detailed list of supplementary accessories.

REFERENCE CHART
| Total width of the cabinet [mm] | Total depth of the cabinet [mm] | |||
|---|---|---|---|---|
| Cabinets with single-leaf door |
600 | 400 | 2032 | 2216 |
| 500 | 2031 | 2215 | ||
| 600 | 2030 | 2214 | ||
| 800 | 2029 | 2213 | ||
| 800 | 400 | 2028 | 2212 | |
| 500 | 2027 | 2211 | ||
| 600 | 2026 | 2210 | ||
| 800 | 2025 | 2209 | ||
| Cabinets with double-leaf door |
1000 | 400 | 2024 | 2208 |
| 500 | 2023 | 2207 | ||
| 600 | 2022 | 2206 | ||
| 800 | 2021 | 2205 | ||
| 1200 | 400 | 2020 | 2204 | |
| 500 | 2019 | 2203 | ||
| 600 | 2018 | 2202 | ||
| 800 | 2017 | 2201 | ||









