.

SUPPLEMENTARY ACCESSORIES - OUTDOOR CABINETS

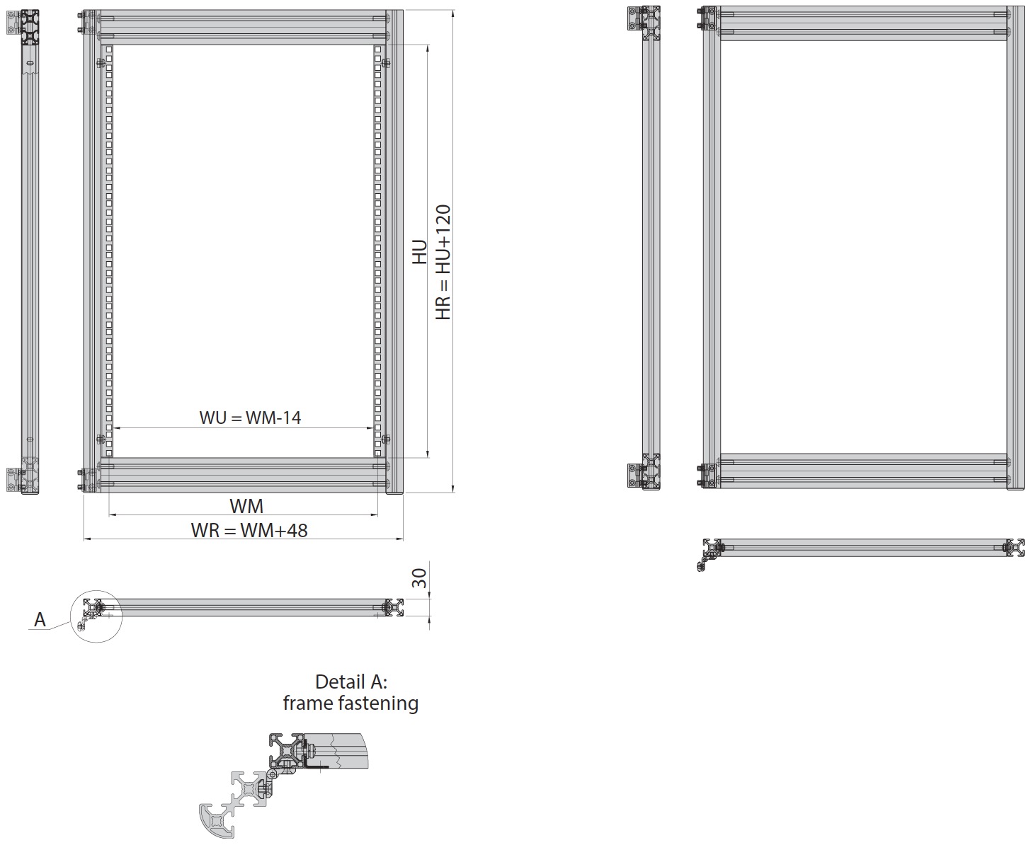
WM = 456 (19") or 515 (21") - mounting width WU - useful width HU - useful height

The frames can be manufacture as single-section or double-section. In case of big loading there are used chest-like frame

Shelves

Shelves for mounting batteries of emergency power supply are made of stainless steel. Dimensions of shelf depend on quantity of mounted batteries are determined by customer’s request.

Partition and cable entry

The partition divides the chambers of the cabinet. It is made of aluminium sheet. In the partition there can be different types of cable entries: foam cable openings, rubber gland seals, cable entries ROXTEC type.

Door switch and door stop

The 3-positioned door switch is mounted at cabinet’s door, positions:
- pos. 1 - unstable pushed-in (door closed)
- pos. 2 - stable pushed out (door opened)
- pos. 3 - "service position", pushed in manually, stable (door opened)
Use only in circuits with safe (extra-low) voltage.

Example:
1. Cabinet’s door closed
- option I - open circuit
- option II - closed circuit
2. Cabinet’s door opened
- option I - closed circuit
- option II - open circuit
3. Cabinet’s door opened "service" position
- option I - open circuit
- option II - closed circuit

Handles for mounting of cabinet

Often, in case of small cabinets exists necessity to adaptation them to mounting directly on the wall or column.
Then to the cabinet we mounted a special mounting handles.

Thermostat

Thermostats are used for controlling fan units, heaters and heat exchangers, also can be used as a signal generator for monitoring the enclosure internal temperature

TECHNICAL DATA

  • Sensor element: thermal bimetal
  • Temperature range: 0 - 60 °C, hysteresis ca. 7 K
  • Contact types: snap action contact,
  • Power carrying capacity: 6 A, 250 V AC
  • Radio frequency interference: "N" (according to VDE 0875)

MPSM-S1 Microprocessor Power Control Panel

MPSM-S1 is a programmable 19" panel for power supply, control, monitoring, energy saving and recording. It measures voltage, current and power for each socket, as well as temperature and humidity. The device is equipped with an unparalleled set of features that make it indispensable in data communication infrastructure. It has an Ethernet communication module with software for Windows systems. The panel features 8 GB of internal memory (hardware database) that is used for recording measurements, events and alarms. The memory allows for up to 24 months of continuous recording. MPSM-S1 panel is a Polish product that has been designed and manufactured in our company. For detailed description of the MPSM-

Voltage distribution panels

Cabinets can be equipped with power distribution panels configured according to customers’ request.

Heater

Compact heating device including heating element and fan.

TECHNICAL DATA

  • voltage rating 230 V AC 50-60 Hz
  • heating power (2 levels) 200/400 W
  • fan capacity . 10 m3 /h
  • protection degree . IP 20
  • dimensions . 71 x 70 x 95 mm
  • mounting bracket for DIN rail mounting

Concrete foundations

In order to provide a complete range of services, ZPAS also offers concrete foundations. These are prefabricated elements either with a monolithic design or connected by means of M10 bolts. In the upper part of the foundations there are M12 anchor bolts welded to the reinforcement. The spacing of the bolts is adjusted to the plinth size of different outdoor cabinets. All parts are moisture-protected. Openings on both sides of the foundations serve as cable entries

Frame for concrete

Foundation frame for concrete to be placed under SZD cabinet.
Equipped with positioning handles and templates for laying conduit pipes.

Plinth base

Foundation frame for the SZD outdoor cabinet, made of stainless steel.
Designed to be filled with concrete or backfilled with soil.

Plinth with height-adjustable base

A 600 mm high aluminium plinth for the SZD outdoor cabinet, with an extendable stainless steel foundation frame to be filled with concrete or backfilled with soil.